【コース概要】
寸法公差のルールや図示方法、表面粗さの種類や図示方法、幾何公差の各機能と図示方法を学びます。
CADに頼らず、ペンを動かして、製図の知識の「再確認」や線1本から「理解して描ける・読める」につなげます。
1.寸法公差(サイズ公差)の解釈と指示
(1)寸法公差に関する用語の意味
(2)公差域クラス・公差付き寸法の指示
(3)はめあい方式(軸基準式・穴基準式)
(4)図面への長さ寸法の許容限界記入方法
2.表面粗さの図示法
(1)表面粗さに関する用語の意味
(2)表面性状のパラメータ(Ra・Rz・その他)
(3)表面性状の図示記号(図記号・パラメータ・加工方法・筋目方向)
(4)各種機械加工に応じた表面粗さの図示例
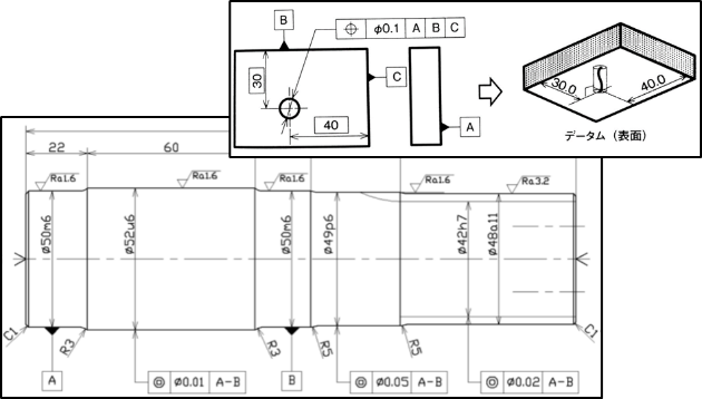
3.幾何公差の図示法
(1)幾何公差の適用と幾何公差の種類・記号
(2)形体・データムの基本
(3)幾何公差の図示方法(公差記入枠、データム、形体への指示)
(4)各種機械加工に応じた幾何公差の図示例と解釈
4.機械製図実習
(1)演習
(2)機械製図実習(手描きで製図します)
コース番号 AMA21 実践機械製図(寸法・公差編) 受付終了
訓練日程
5/13(水)・14(木)・15(金)
実施時間帯
9:30〜16:30
総訓練時間
18.0時間
受講料
11,500円
定員
10名
対象者
機械加工・機械設計製図・測定作業に従事する方。今後担当する方にもお勧めします!
訓練内容

使用機器・教材
製図機器・用具一式、各種機械部品図面等
持参品・服装
筆記用具、「機械製図【基礎編】(ISBN:978-4-87563-432-4 雇用問題研究会)」を持参してください。
実施場所
研修室S1
備考
【受講の注意】
※)本コースは投影図や寸法記入の知識をおおよそ理解していることを前提としています。不安な方は先に「(AMA11)実践機械製図(各種投影法編)」を受講ください。
※)2次元CADシステムは本セミナーでは使用しません。
※)本コースは投影図や寸法記入の知識をおおよそ理解していることを前提としています。不安な方は先に「(AMA11)実践機械製図(各種投影法編)」を受講ください。
※)2次元CADシステムは本セミナーでは使用しません。
