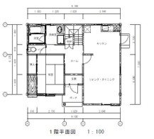
2次元CAD(Jw_cad)を活用し、木造住宅に必要な建築図面(配置図、建築概要表、平面図、立面図)の作成方法を習得します。環境設計、レイヤ、クロックメニューなどの機能を活用したい方におすすめのコースとなっております。
①概要
②各種図面
③図面作成の準備
④図面作成方法
⑤演習・課題
⑥まとめ

2次元CAD(Jw_cad)を活用し、木造住宅に必要な建築図面(配置図、建築概要表、平面図、立面図)の作成方法を習得します。環境設計、レイヤ、クロックメニューなどの機能を活用したい方におすすめのコースとなっております。
①概要
②各種図面
③図面作成の準備
④図面作成方法
⑤演習・課題
⑥まとめ